The owners of this deep, narrow property sought to leverage their laneway to generate rental income and provide long-term housing flexibility for their young family. Our team worked to develop an as-of-right structure to optimize rental return through thoughtful design, while avoiding the need for approvals at the Committee of Adjustment.
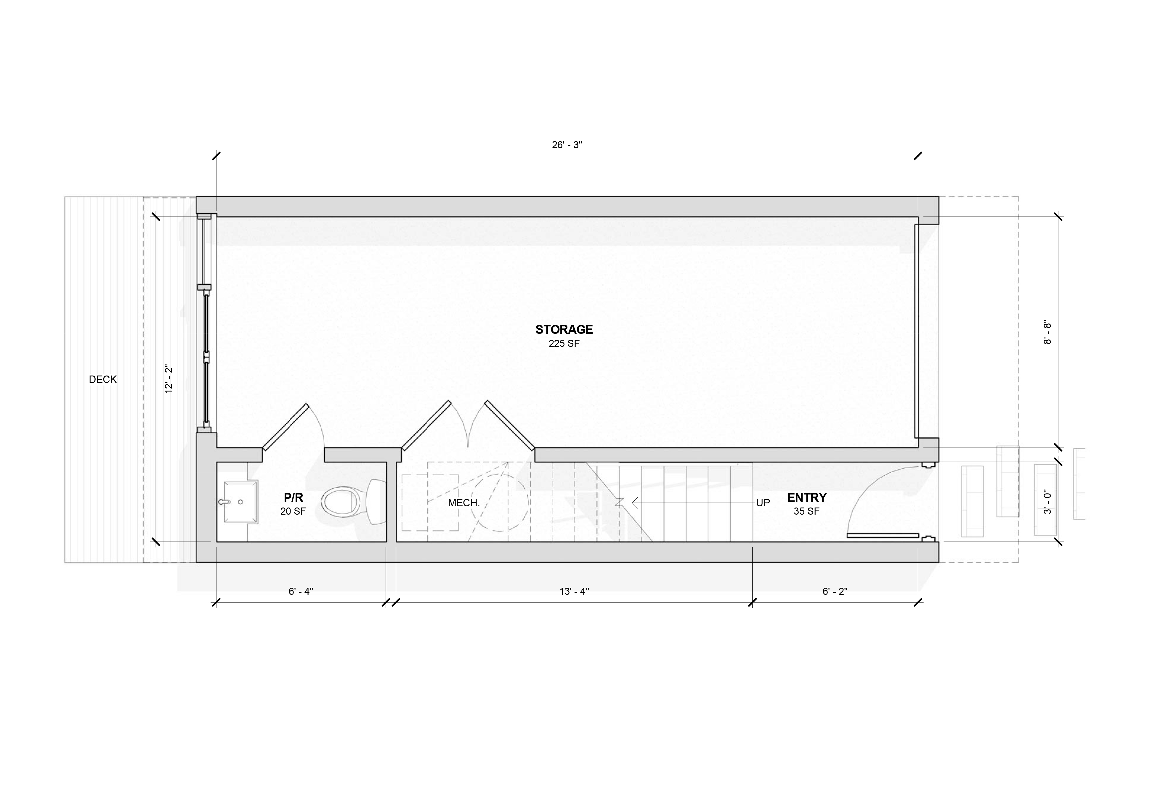
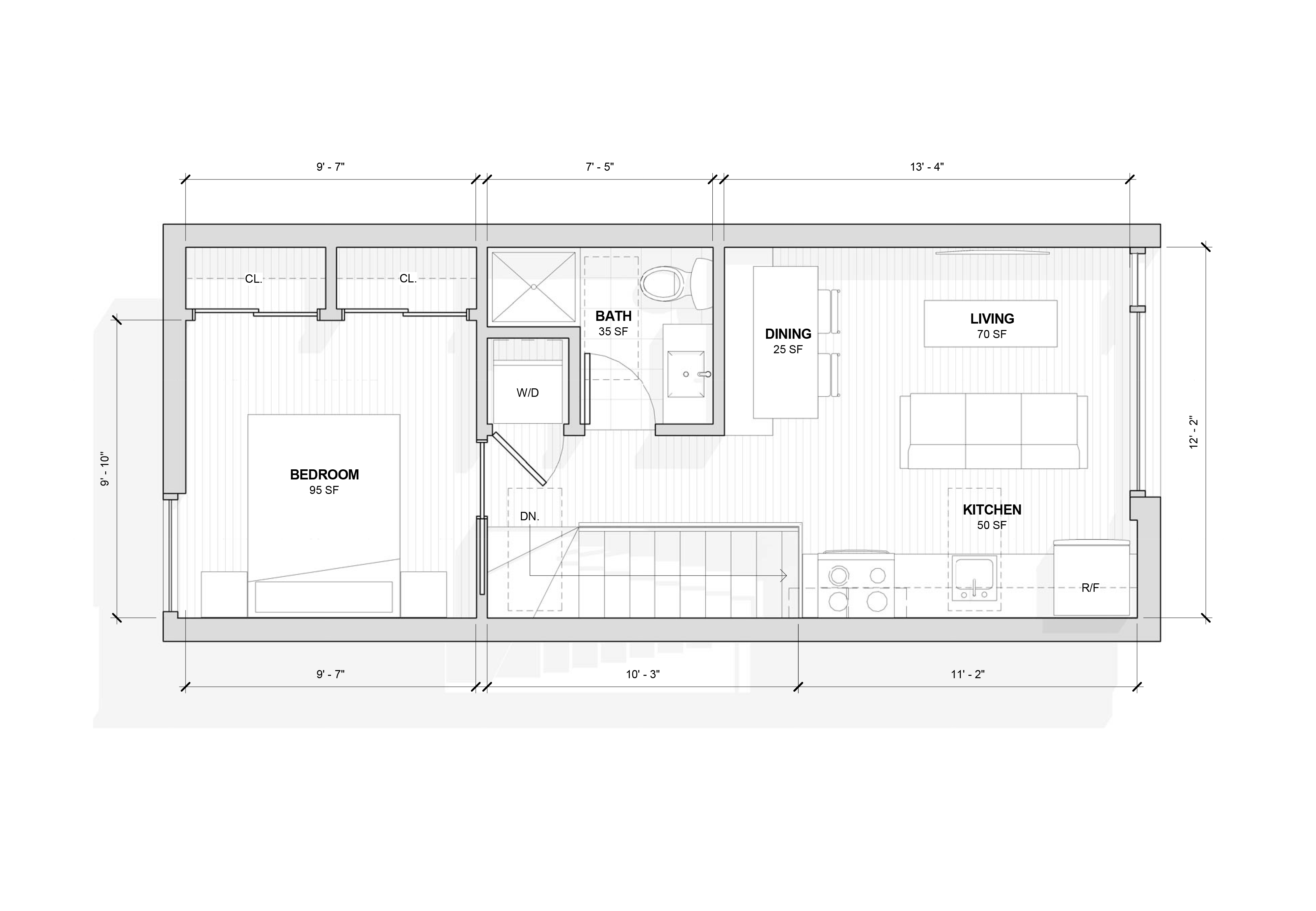
The result is this 840 square-foot, one-bedroom laneway suite featuring an open concept living space oriented to the lane and bedroom overlooking the rear yard. The ground floor incorporates a large garage and storage area capable of being converted to additional living space in future. The budget-conscious design employs standard construction details and economical claddings, with targeted investments in highly efficient windows and a super-insulated, air-tight envelope.
With a desire to create a unique, compact urban living space while maintaining a bright, modern, and comfortable interior, this Laneway Suite demonstrates how construction-conscious design and an intrinsic knowledge of the applicable by-laws can yield a secondary suite that is practical, beautiful, and financially feasible.
Builder: ZZ Contracting
Photographer: Dave Rempel








