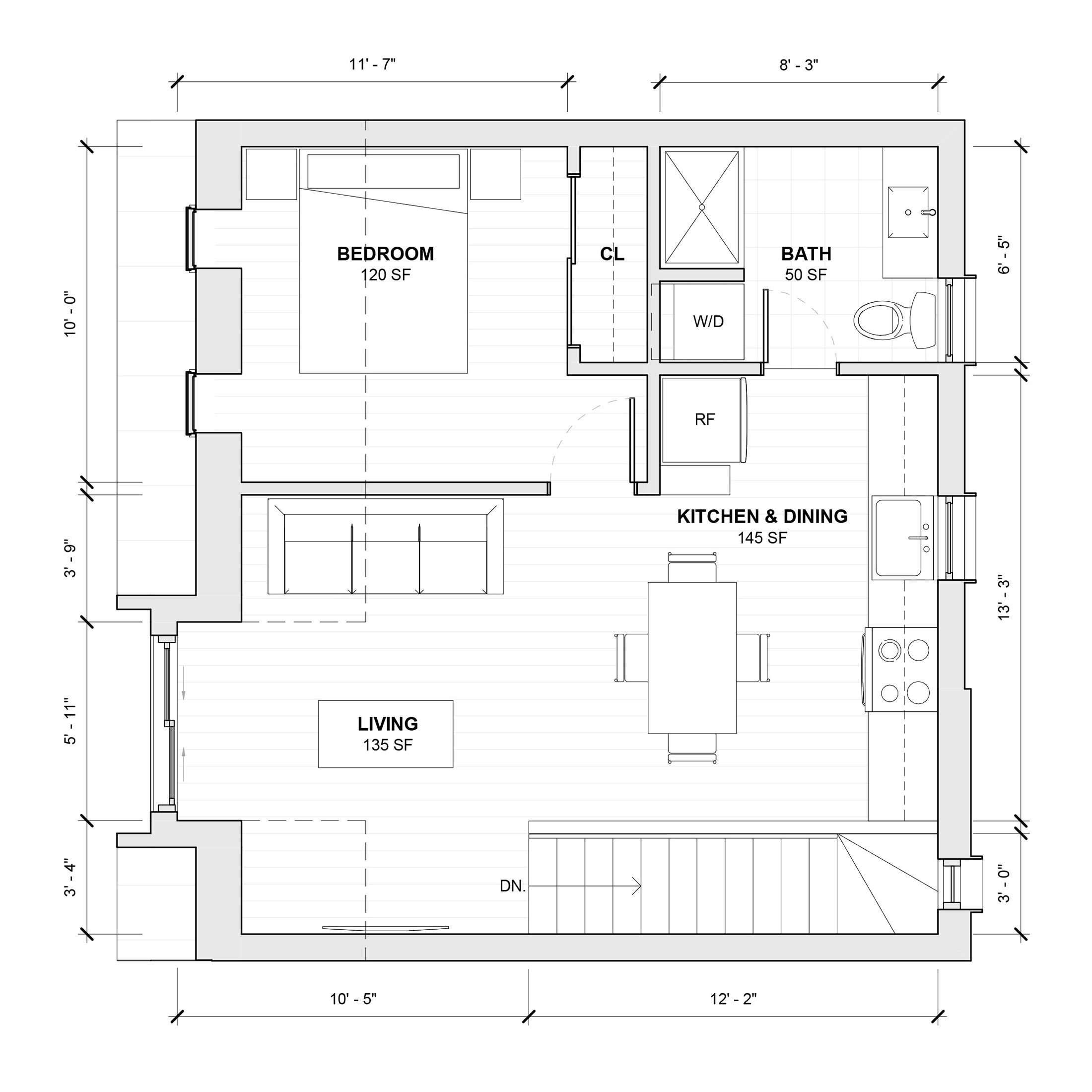
This 900 square foot, super-efficient laneway suite will provide the homeowner’s mother with a long-term space to age in place while maintaining housing flexibility for the family currently occupying the main house. A single car garage and multi-purpose office space occupy the ground level alongside a compact three-piece bathroom. A single bedroom living space at the second floor is accessed from the laneway via a private entry vestibule giving way to an open concept living space featuring all the comforts of home. Working closely with the homeowner, the Runnymede Laneway Suite melds contemporary geometry and detailing with traditional claddings to embrace a transitional aesthetic that compliments the main house and neighbourhood at large. With strategic investments in a well insulated, air-tight envelope in addition to an all-electric heating and cooling system, this build aims to minimize the building’s carbon footprint while future-proofing for net-zero energy consumption.
The Runnymede Laneway Suite is a perfect example of how this new typology can enable multi-generational living and overall housing flexibility for the average homeowner. The project also exemplifies how passive design approaches can be employed to maximize building performance and ultimately exceed sustainability goals.
Builder: Laneway Custom Build
Photography: Kiera Noel









