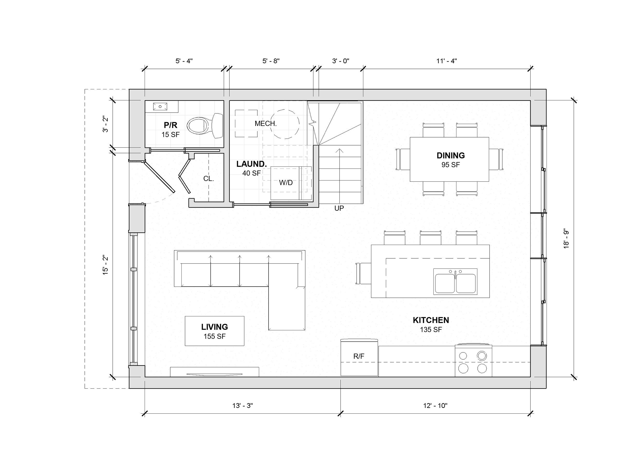
The homeowner of this Queen West lot approached Lanescape seeking to create additional revenue and increase the value of their property. Designed as a long-term family-oriented rental, the proposal maximizes the permitted building area while adhering to the as-of-right zoning by-laws. This modern, 1,050 square-foot 2-storey suite offers 3 modest bedrooms, 2.5 bathrooms with a comfortable open concept living space at the ground floor and a covered parking pad adjacent the laneway.
The building facade aims to compliment the red brick of the existing primary residence, while creating a modern contrast with dark metal siding and a rectilinear geometry. Interior spaces and windows are oriented to maximize privacy at the laneway, frame views at the upper level, and create connections to the outdoors. Large french doors at the rear yard allow a seamless transition from interior to exterior with valuable outdoor space provided to the suite’s future tenants.
Our team worked with the homeowner to maximize revenue potential through spatial efficiency and consideration for the intangible benefits of a well-finished space. The Queen West Laneway Suite exemplifies how financial, design, and technical comprehension can create an informed response that is both a beautiful and lucrative asset.
“Great experience from start to finish. I wouldn’t hesitate to use your services again or recommend your services to others.”
-DB















